🔔 Vous avez actuellement des candidatures en attente.



>
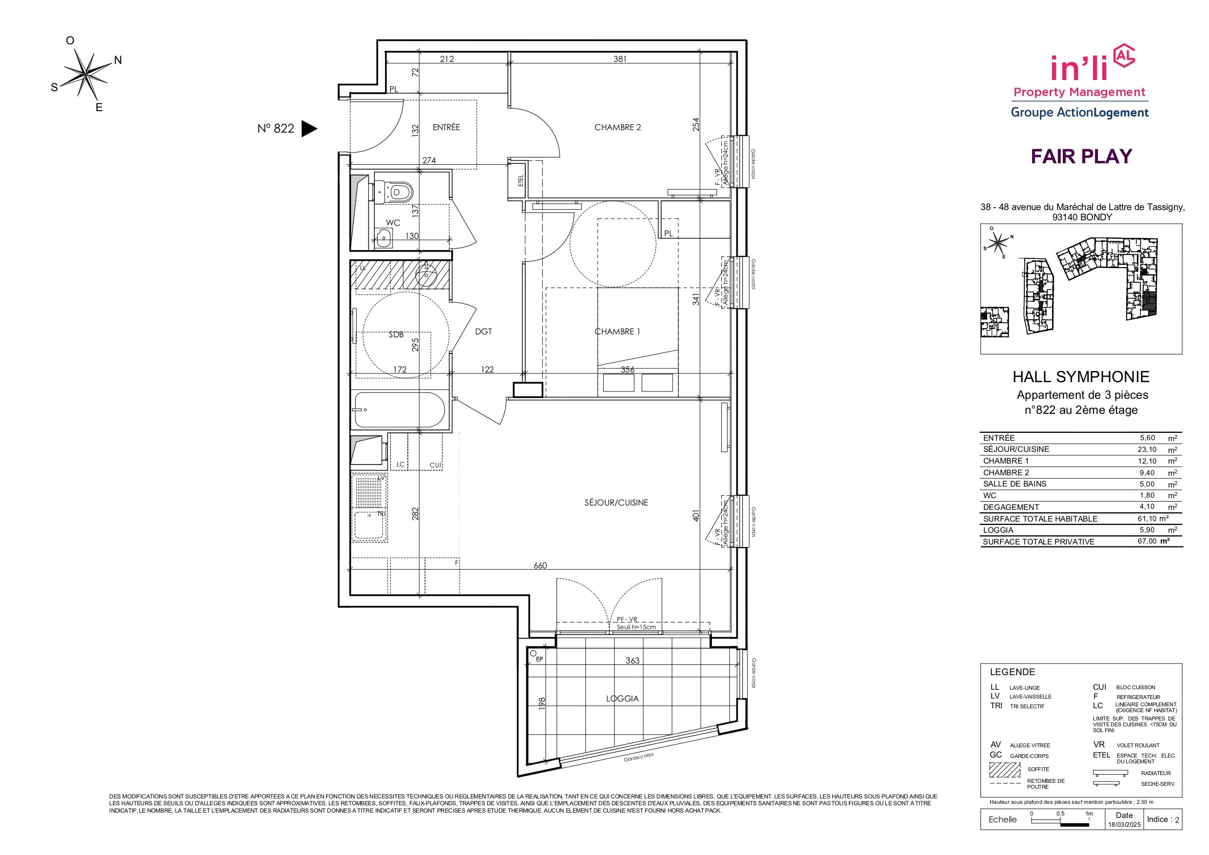
Sans frais d'agence, direct bailleur In'li. Votre prochaine adresse vous attend à Bondy (livraison prévue fin novembre / début décembre 2025) ! La résidence se situe au 34 / 36 avenue du Maréchal de Lattre de Tassigny, à 2 pas du centre-ville et de toutes ses commodités. Vous bénéficierez également de la proximité des transports (Tram T1 Pont de Bondy et RER E Bondy à quelques minutes à pied, arrivée du T Zen 3 prévue en 2028, arrivée du métro ligne 15 prévue en 2030). A louer Appartement de 61,10m² au 2ème étage qui se compose d'une entrée avec rangement , un séjour de 23,10m² avec cuisine ouverte donnant accès à un loggia de 5,90m² exposé est. 2 chambres de 12,10m² et 9,40m². Une salle de bain et WC séparé. Chauffage collectif au gaz.Une place de stationnement en intérieur. NB : photos des logements non contractuelles, en illustration des prestations types.Réservation sur plan uniquement SANS VISITES.
Accéder à la
visite vidéo
< 50 A
51 à 90 B
91 à 150 C
151 à 230 D
231 à 330 E
331 à 450 F
> 450 G
Unité de mesure exprimé en KWhEP/m².an
< 5 A
6 à 10 B
11 à 20 C
21 à 35 D
36 à 55 E
56 à 80 F
> 80 G
Unité de mesure exprimé en kgegCO2/m².an
< 5 A
6 à 10 B
11 à 20 C
21 à 35 D
36 à 55 E
56 à 80 F
> 80 G
Unité de mesure exprimé en kgegCO2/m².an
< 50 A
51 à 90 B
91 à 150 C
151 à 230 D
231 à 330 E
331 à 450 F
> 450 G
Unité de mesure exprimé en KWhEP/m².an
Les informations sur les risques auxquels ce bien est exposé sont disponibles sur le site
Géorisques
https://www.georisques.gouv.fr
Enregistrez vos annonces préférées dans la liste de vos favoris.