🔔 Vous avez actuellement des candidatures en attente.
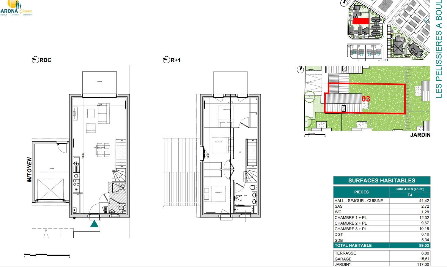
RESERVE AUX SALARIES DU PRIVE - Villa type 4 de 89,03 m2 dans un quartier résidentiel de la commune de Bouloc à 200 mètres d'Intermarché et d'autres commerces. Le logement se compose au rdc d'une pièce à vivre et d'une cuisine aménagée (meubles hauts, bas, plaque et hotte) de 41,42 m2, d'un SAS de 2,72 m2 et d'un WC séparé.A l'étage se situe le coin nuit de 3 chambres de 12,32 à 9,67 m2 avec placard, une sdb de 5,34 m2.Un garage complète ce bien ainsi qu'un jardin de 117 m2 et une terrasse de 6 m2. Photos non contractuelles SANS FRAIS D'AGENCE - Loyer payable a terme échu
< 50 A
51 à 90 B
91 à 150 C
151 à 230 D
231 à 330 E
331 à 450 F
> 450 G
Unité de mesure exprimé en KWhEP/m².an
< 5 A
6 à 10 B
11 à 20 C
21 à 35 D
36 à 55 E
56 à 80 F
> 80 G
Unité de mesure exprimé en kgegCO2/m².an
< 5 A
6 à 10 B
11 à 20 C
21 à 35 D
36 à 55 E
56 à 80 F
> 80 G
Unité de mesure exprimé en kgegCO2/m².an
< 50 A
51 à 90 B
91 à 150 C
151 à 230 D
231 à 330 E
331 à 450 F
> 450 G
Unité de mesure exprimé en KWhEP/m².an
Les informations sur les risques auxquels ce bien est exposé sont disponibles sur le site
Géorisques
https://www.georisques.gouv.fr
Enregistrez vos annonces préférées dans la liste de vos favoris.